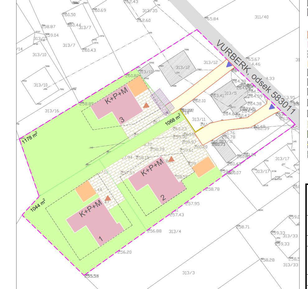
Predlog občinskega podrobnega prostorskega načrta za del območja enote urejanja prostora VF-3, v k.o. Vurberk; ID 2682

2. 9. 2022 Dejan S.